Beschrijving
~~ ENGLISH TEXT BELOW ~~
**OPEN HUIZEN DAG ZATERDAG 4 OKTOBER 2025! U bent op zaterdag 4 oktober 2025 welkom om deze woning te bezichtigen tussen 11:00 uur en 15:00 uur. Vooraf aanmelden? Reageer op de woning en wij zorgen ervoor dat het move account voor u wordt opengesteld!**
Welkom in dit charmante Zaans huisje, gelegen aan de idyllische straat Ameland in het rustieke Zaandam. Deze karaktervolle woning weet nostalgische charme moeiteloos te combineren met hedendaags comfort. Een bijzonder pluspunt is de volledig herstelde fundering, wat zorgt voor een solide en zorgeloze woonbasis. Daarnaast beschikt de woning over een sfeervol aangelegde achtertuin met een multifunctioneel tuinhuis, uitgerust met een eigen badkamer en slaapgelegenheid – ideaal voor gasten of als rustige werkplek.
Locatie en omgeving:
De locatie in Zaandam kan haast niet beter. Omgeven door een scala aan voorzieningen zoals scholen, supermarkten, en een sportschool, is alles wat u nodig heeft binnen handbereik. Eveneens benadrukt de nabijheid van verschillende speeltuinen en uitvalswegen de praktische en gunstige ligging van deze woning. Hier geniet u van het rustige leven in een residentiële wijk, maar blijft u toch verbonden met het bruisende stadshart.
Kenmerken van de woning:
Deze karaktervolle woning uit 1896 ademt historie, maar is voorzien van een moderne en eigentijdse afwerking. Het betreft een vrijstaand huis met een woonoppervlakte van 71 m², gelegen op een perceel van 103 m². De woning is uitstekend geïsoleerd met dak-, wand- en vloerisolatie, en beschikt over dubbele beglazing. Zowel het interieur als het exterieur verkeren in een goede tot uitstekende staat van onderhoud. Met energielabel D biedt het huis een aangename balans tussen comfort en duurzaamheid.
Indeling
Begane grond:
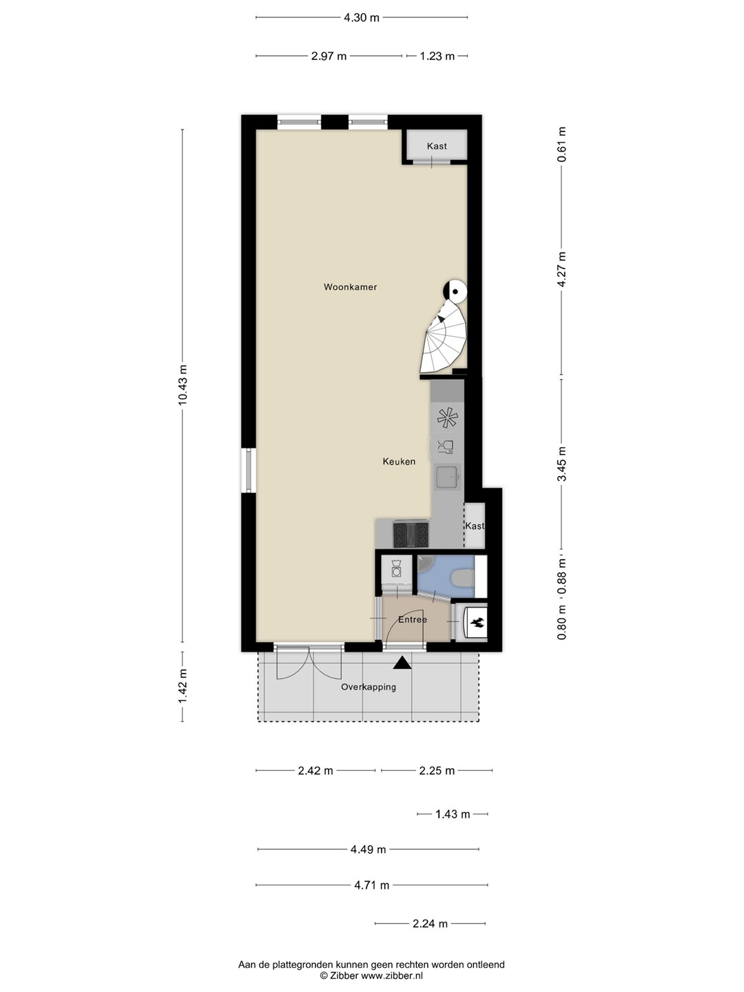
Op de begane grond bevindt zich een sfeervolle en uitnodigende leefruimte, met voldoende plaats voor zowel een comfortabele zithoek als een aparte eethoek. Dankzij de grote ramen valt er volop natuurlijk licht naar binnen, wat in combinatie met de nette afwerking zorgt voor een prettige en warme sfeer.
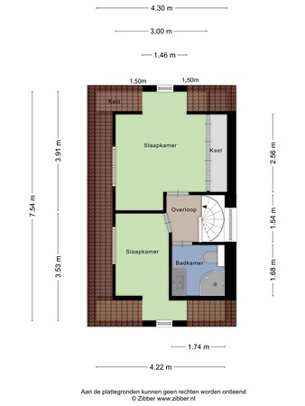
Eerste verdieping:
Op de bovenverdieping bevinden zich twee slaapkamers en een complete badkamer, uitgerust met een toilet, douche en wastafel. Deze verdieping is ideaal voor gezinnen, stellen of alleenstaanden die waarde hechten aan een comfortabele en functionele indeling.
Buitenruimte en tuin:
De buitenruimte vormt een absoluut hoogtepunt van deze woning. De fraai aangelegde achtertuin, bereikbaar via een achterom, beslaat een oppervlakte van 45 m² en biedt volop ruimte om te ontspannen. Daarnaast bevindt zich in de tuin een multifunctionele houten berging/woonruimte, uitgerust met verwarming, elektriciteit en een wateraansluiting.
Parkeren:
Er zijn voldoende parkeermogelijkheden op de openbare weg en direct naast de woning bevindt zich een kleinschalig parkeerterrein.
Bijzonderheden van deze woning omvatten:
- Woonoppervlakte van ca. 71 m2
- 2 slaapkamers
- moderne woonkeuken
- Tuin gelegen op het Zuidoosten
- Energielabel: D
- Fundering hersteld
- Tuinhuis voorzien van badkamer en slaapvoorziening
- Karakteristiek Zaans huisje
- Let op! De derde slaapkamer is gepositioneerd in de tuin.
Bent u op zoek naar een woning met karakter, comfort en praktische gemakken, en gelegen op een unieke locatie? Grijp dan nu uw kans en plan snel een bezichtiging in. Deze prachtige woning in Zaandam moet u echt met eigen ogen zien. Wij kijken ernaar uit om u binnenkort te verwelkomen in Ameland 35, 1506 ZV, Zaandam.
Gebruiksoppervlakte woningen:
De gebruiksoppervlakte is gemeten volgens de Meetinstructie gebaseerd op NEN2580. Deze methode is bedoeld voor een eenduidige meting, maar verschillen in uitkomst kunnen ontstaan door interpretatieverschillen, afrondingen of beperkingen bij het uitvoeren van de meting.
Alle verstrekte informatie dient uitsluitend als uitnodiging tot het doen van een bod of om in onderhandeling te treden. Er kunnen geen rechten worden ontleend aan deze woninginformatie.
------------------------------------
**OPEN HOUSE – SATURDAY, OCTOBER 4, 2025! You're welcome to view this property on Saturday, October 4, 2025, between 11:00 AM and 3:00 PM.
Want to register in advance? Simply respond to the listing and we'll set up your Move account!**
Welcome to this charming Zaan-style house, located on the idyllic Ameland street in the rustic town of Zaandam. This characterful home effortlessly blends nostalgic charm with modern comforts. A major advantage is the fully restored foundation, ensuring a solid and worry-free living environment. The beautifully landscaped backyard features a versatile garden house, complete with its own bathroom and sleeping facilities – perfect for guests or as a peaceful workspace.
Location and Surroundings:
The location in Zaandam is hard to beat. Surrounded by a wide range of amenities such as schools, supermarkets, and a gym, everything you need is within easy reach. The proximity to several playgrounds and main roads further emphasizes the home’s convenient and practical location. Here, you can enjoy peaceful residential living while remaining well connected to the vibrant city center.
Property Features:
This characteristic home, built in 1896, radiates history while offering a modern and contemporary interior. It is a detached house with a living area of 71 m², situated on a 103 m² plot. The home is excellently insulated with roof, wall, and floor insulation, and fitted with double glazing throughout. Both the interior and exterior are in good to excellent condition. With an energy label D, this property offers a pleasant balance between comfort and sustainability.
Layout
Ground floor:
The ground floor features a warm and inviting living space, with ample room for a comfortable seating area and a separate dining space. Large windows allow natural light to flood in, and the neat finish contributes to the overall cozy atmosphere.
First floor:
The upper floor comprises two bedrooms and a fully equipped bathroom with a toilet, shower, and washbasin. This layout is ideal for families, couples, or individuals seeking a functional and comfortable living arrangement.
Outdoor Space and Garden:
The outdoor area is truly one of the highlights of this property. The stylishly landscaped rear garden, accessible via a back entrance, measures approximately 45 m² and offers plenty of space to relax. Additionally, a multifunctional wooden garden house is located in the garden, complete with heating, electricity, and a water connection.
Parking:
There are ample parking options available on the public road, and a small-scale parking area is located directly next to the house.
Property Highlights:
- Living area approx. 71 m²
- 2 bedrooms
- Modern kitchen
- Southeast-facing garden
- Energy label: D
- Restored foundation
- Garden house with bathroom and sleeping area
- Characteristic Zaan-style home
Are you looking for a home that combines character, comfort, and practical features, in a truly unique location? Don’t miss out on this opportunity and schedule a viewing today. This beautiful home in Zaandam is one you truly have to see for yourself. We look forward to welcoming you soon at Ameland 35, 1506 ZV, Zaandam.
Usable Floor Area:
The usable floor area has been measured in accordance with the Measurement Instruction based on NEN2580. This method is intended to provide a consistent measurement approach; however, differences in interpretation, rounding, or limitations during the measurement process may lead to slight discrepancies.
All information provided is intended solely as an invitation to make an offer or to enter into negotiations. No rights can be derived from this property information.